Samostojni nizko-energetski hiši Cirkovce – prodano!
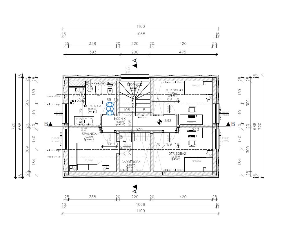
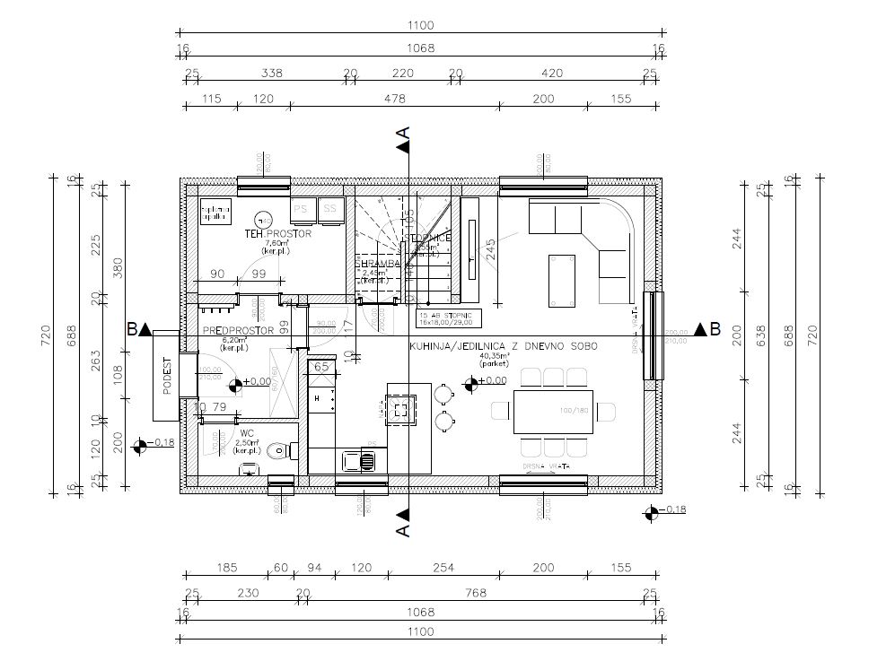
Tloris pritličja in mansarde
Zunanja ureditev
Podrobne informacije o novogradnji
LOKACIJA: Cirkovce, občina Kidričevo. Mirna lokacija ob novi asfaltirani slepi ulici, v naselju novogradenj. V neposredni bližini je vrtec, osnovna šola, trgovina, železniška postaja in avtobusna postaja. Dobra cestna povezava z relacijo: Maribor / Ptuj / Slovenska Bistrica.
VELIKOST ZEMLJIŠČA: 510 m2.
VELIKOST HIŠE: 122 m2.
ROK IZVEDBE: 5 mesecev od podpisa pogodbe.
PROSTORI: Hiše so etažnosti P+M. V pritlični etaži so: predprostor, tehnični prostor s pralnico, shramba, bivalni prostor s kuhinjo, jedilnico in dnevno sobo z izhodom na zunanjo teraso. V mansardi so: hodnik, spalnica z garderobno sobo, dve otroški sobi in kopalnica.
IZVEDBA:
- Betonska plavajoča plošča debeline 25 cm,
- Debelina toplotne izolacije proti tlem 20 cm
- Opečnata gradnja
- Streha: klasična simetrična dvokapnica, lesena konstrukcija, opečnata kritina
- Kleparski izdelki: barvni aluminij
- Okna 3-slojna z vgrajenimi komarniki in senčili (proizvajalec AJM)
- Fasada: tip BAUMIT debelina 16 cm zaključni sloj GRANOPOR TOP 1,5mm
- Toplotna izolacija na podstrešju: debelina 30 cm
- Stropi v mansardi: mavčnokartonske plošče
PRIKLJUČKI: Urejeni so priključki za vodo, elektriko, kanalizacijo in KTV.
Plačan je priklop na elektriko, vodo in kanalizacijo.
OKOLICA:
- Dovozna pot – tlakovci
- Terasa in pločniki okoli hiše – betonske plošče
- Zelenica
- Ograjeno z žičnato ograjo
- Vrtni priključek za vodo
- Ulica je asfaltirana, ob njej je javna razsvetljava
FINALIZACIJA: Hiše se prodajajo nedokončane. Manjkajo: podi, notranja vrata, sanitarna oprema in keramika, stikala in vtičnice ter finalni oplesk. Toplotna črpalka je instalirana. Po želji kupca se lahko hiša tudi finalizira, kar plača kupec posebej glede na izbrane materiale in opravljena dela.
Samostojni nizko-energetski hiši Cirkovce – Prodano!
Tloris pritličja in mansarde
Zunanja ureditev
Podrobne informacije o novogradnji
LOKACIJA: Cirkovce, občina Kidričevo. Mirna lokacija ob novi asfaltirani slepi ulici, v naselju novogradenj. V neposredni bližini je vrtec, osnovna šola, trgovina, železniška postaja in avtobusna postaja. Dobra cestna povezava z relacijo: Maribor / Ptuj / Slovenska Bistrica.
VELIKOST ZEMLJIŠČA: 510 m2.
VELIKOST HIŠE: 122 m2.
ROK IZVEDBE: 5 mesecev od podpisa pogodbe.
PROSTORI: Hiše so etažnosti P+M. V pritlični etaži so: predprostor, tehnični prostor s pralnico, shramba, bivalni prostor s kuhinjo, jedilnico in dnevno sobo z izhodom na zunanjo teraso. V mansardi so: hodnik, spalnica z garderobno sobo, dve otroški sobi in kopalnica.
IZVEDBA:
- Betonska plavajoča plošča debeline 25 cm,
- Debelina toplotne izolacije proti tlem 20 cm
- Opečnata gradnja
- Streha: klasična simetrična dvokapnica, lesena konstrukcija, opečnata kritina
- Kleparski izdelki: barvni aluminij
- Okna 3-slojna z vgrajenimi komarniki in senčili (proizvajalec AJM)
- Fasada: tip BAUMIT debelina 16 cm zaključni sloj GRANOPOR TOP 1,5mm
- Toplotna izolacija na podstrešju: debelina 30 cm
- Stropi v mansardi: gips
PRIKLJUČKI: Urejeni so priključki na vodo, elektriko, kanalizacijo in KTV.
Plačan je priklop na elektriko, vodo in kanalizacijo.
OKOLICA:
- Dovozna pot – tlakovci
- Terasa in pločniki okoli hiše – betonske plošče
- Zelenica
- Ograjeno z žičnato ograjo
- Vrtni priključek za vodo
- Ulica je asfaltirana, ob njej je javna razsvetljava
FINALIZACIJA: Hiše se prodajajo nedokončane. Manjkajo: podi, notranja vrata, sanitarna oprema in keramika, stikala in vtičnice ter finalni oplesk. Toplotna črpalka je instalirana. Po želji kupca se lahko hiša tudi finalizira, kar plača kupec posebej glede na izbrane materiale in opravljena dela.











